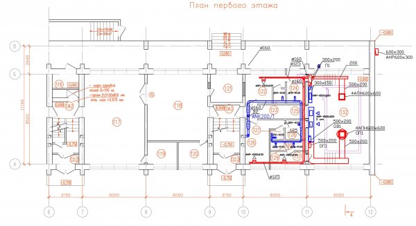
Проект вентиляции №1697

 

Интерес к возможности построения схемы вентиляции объекта без определенного опыта увеличивается с каждым днем. Для опытного инженера- вентиляторщика не составит особого труда начертить чертеж несложной вентиляции, которая без проблем будет бесперебойно работать. 
Можно определить две версии решения проблемы:

  1. Вентиляцию делает опытный слесарь-вентиляторщик, который внедряет главные правила монтажа вентиляции, поэтому небольшие ошибки связаны с неправильным подсчетом нехватки воздухообмена.
  2. Вентиляцию проектирует непрофильный инженер, а монтируют разнорабочие. В данном варианте количество ошибок предсказать заранее не возможно. Чтобы потом не пришлось исправлять и переделыватьнеточности – лучше всего обращаться к знающим консультантам.

Наша новая рубрика в полном объеме предлагает вашему вниманию информационные новости из мира вентиляционных систем. На данном сайте максимально предложены большое количество разработанных типовых проектов вентиляционных систем любой сложности. 
Вашему вниманию предлагаются варианты вентиляции загородных домов, высотных домов, небольших павильонов, заводских и складских помещений. 
Наши сотрудники всегда рады помочь вам в решение ваших проблем.

Опубликовано: 26-06-2014, 17:37 | Рубрика: Проектирование и устройство | Просмотров:


Возможно, Вас заинтересует

Автоматика вентиляции - Датчик...

Для нормальной работы автоматики систем вентиляции исполнительные устройства должны снабжаться...

Автоматика вентиляции - Исполн...

Исполнительные механизмы — это приводные части исполнительных устройств. Такими механизмами являются...

Автоматика вентиляции - Регуля...

1. Регуляторы температуры. Основным элементом системы является регулятор температуры, который...

Воздушный клапан

Вентиляционный или воздушный клапан это участок воздуховода с заслонкой. Функции воздушного клапана...